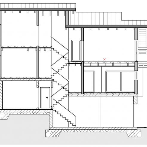
Ein relativ schmales Grundstück mit einem stark ansteigenden Gelände von fast 8 Metern – Da kam schnell die Idee eines sogenanneten „Split-Level-Hauses“ auf. Die jeweiligen Geschosse versetzen untereinander in der Höhe, sodass das Gebäude praktisch mit dem Gelände in die Höhe wächst.
So entstand ein geräumiges Einfamilienhaus, dass sich harmonisch in die Landschaft einfügt.
Die Montage des Rohbaus ist für Frühjahr 2021 geplant.
Entwurf
Daten
- 168 m² Wohnfläche
- 72 m² Nutzfläche
- große Garage im KG
- Split-Level Design
- 30° Satteldach




















