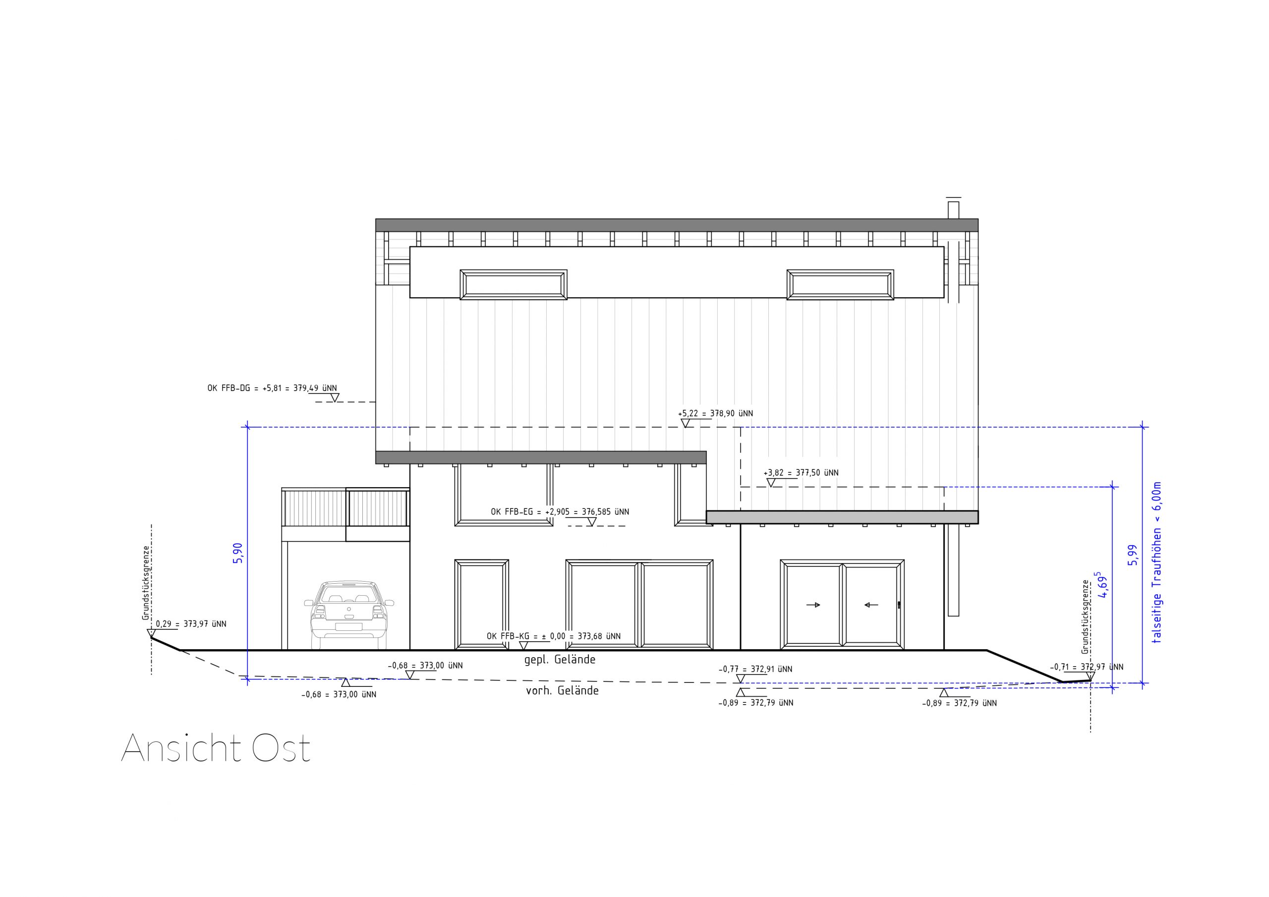
Ein Wohnhaus mit versetzten Satteldach und toller Aussicht in die Natur.
Über dem Wohn-/Essbereich befindet sich ein offen gestalteter Luftraum mit sichtbarerem Dachstuhl.
Das Gebäude ist mit Einliegerwohnung geplant, die bei Bedarf mit geringem Planungsaufwand in das Gesamthaus integriert werden kann. Dadurch ist eine spätere Nutzung als Einfamilienhaus problemlos möglich.
Entwurf
Daten
- Wohnhaus mit zwei Wohneinheiten
- 35° versetztes Satteldach
- Wohnfläche 265 m²
- Nutzfläche 33 m²
























